Tel
0523-8733 8088
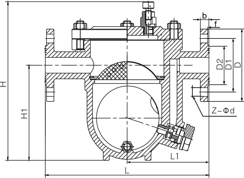
This product is based on the principle of buoyancy, causing the floating ball in the valve body to move up and down with changes in water level, in order to achieve the function of valve opening and closing, i.e. drainage and steam blocking.
◆ Capable of continuous drainage, stable performance, large drainage capacity, and low air leakage.
◆ Capable of continuously saturating water, resulting in less stagnant condensed water in the equipment, fast heating, and stable heating temperature.
◆ There is an automatic cooling air exhaust device, without Air lock, and there is no noise in working balance.






